privat

privat
2009
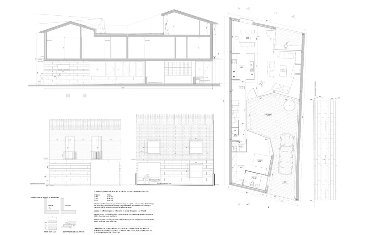
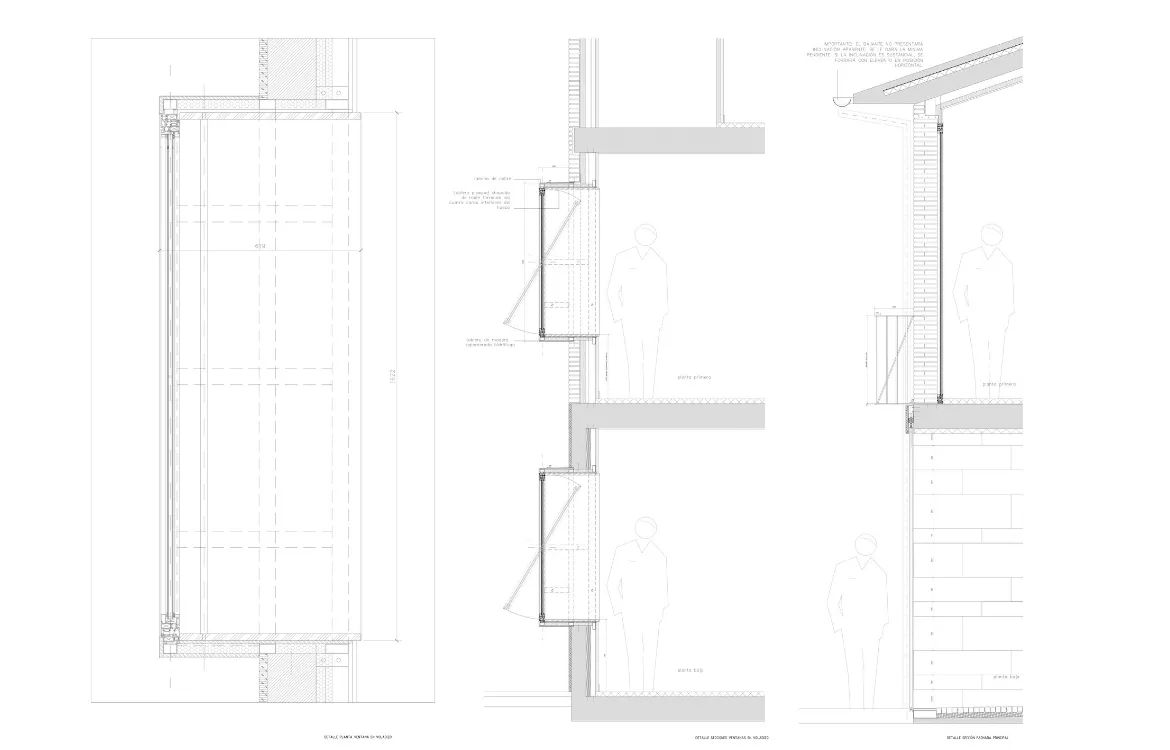
Aquest és el resultat de l’estreta col·laboració entre clients i arquitectes, i la predisposició de tots els industrials envers un objectiu comú. Amb els mateixos elements tradicionals de l’arquitectura local, vàrem desafiar els resultats habituals, al límit del que la normativa i els tècnics municipals permetien.
Cada cert temps tenim el privilegi de poder visitar aquesta casa amb la que tant vàrem gaudir del procés, i que tal com preteníem va envellint amb dignitat.

















